概述
此工艺采用PTFE棒材车削成的薄膜,缠绕烧结成形。适用于常压、正压的输送管路(如三废处理管路等),不宜用于有负压的管理(如泵进、出口处及由落差或突然冷却等能产生负压的管路)。
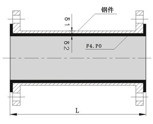
F4、PO、PE 衬里管道
| 项目名称 | 聚四氟乙烯衬里管道(F4) | 聚烯烃衬里管道(PO或PE) |
| 介质 | 除高温高融碱金属、元素氟与三氟化氯外,任何种类、任何浓度的酸、碱、盐、强氧化剂、有机溶剂与其它所有强腐蚀性化学介质。是解决高温稀硫酸、氢氟酸、盐酸和各种有机酸等强腐蚀化学介质腐蚀问题的理想产品。 | 一般弱酸、弱碱、废水、废气等。 详见使用条件表。 |
| 温度 | -50~250℃ | -30~80℃ |
| 压力 | 标准产品为1.6Mpa特殊可制成高达6.4Mpa | 标准产品为1.6Mpa特殊可制成高达6.4Mpa、抗负压77Kpa |
直管:规格对照表
| 标准长度(mm) |
| 1000 | 1500 | 2000 | 2500 | 3000 | 4000 |

| 公称直径 DN | 壁厚(mm) |
| F4 | PO(PE) |
| δ1 | δ2 | δ1 | δ2 |
| 25 | 2-3 | 1.1-1.5 | 2-3 | 2.5-3.5 |
| 32 | 2-3 | 1.1-1.5 | 2-3 | 2.5-3.5 |
| 40 | 2-3 | 1.1-2.0 | 2-3 | 2.5-3.5 |
| 50 | 3-4 | 1.1-2.5 | 3-4 | 3.0-3.5 |
| 65 | 3-4 | 1.1-2.5 | 3-4 | 3.5-4.5 |
| 80 | 3-4 | 1.1-2.5 | 3-4 | 4.0-4.5 |
| 100 | 3-4 | 1.1-3.0 | 3-4 | 4.0-4.5 |
| 125 | 4-5 | 1.5-3.0 | 4-5 | 4.0-5.0 |
| 150 | 4-5 | 1.5-3.0 | 4-5 | 4.5-5.5 |
| 200 | 4-5 | 1.5-3.0 | 4-5 | 5.0-7.0 |
| 250 | 4-5 | 2.0-3.5 | 4-5 | 6.0-8.0 |
| 300 | 5-6 | 3.5-4.0 | 5-6 | 7.0-10 |
F4、PO内衬两端翻边宽度