F46衬里球阀概述
球阀是用带圆形通孔的球体作启闭件,球体随阀杆绕阀体中心线旋转以实现阀门的开启和关闭。本公司衬里球阀系列为Q41F46型,为对分二片式结构。
结构特点
1.采用FEP特殊模压工艺,使密封面致密性良好,加之V型PTFE填料组合,使阀门达到零泄漏。
2.球体与阀杆铸为一体,避免由于压力变化引起阀杆冲出承压件的可能性,保证了使用的安全性。
3.采用全衬里工艺,能耐除“熔融碱金属和元素氟”以外其他任何强腐蚀介质。
设计规范
遵循GB12237/API608/API6D标准。
驱动方式
手动,蜗轮传动,气动,电动。
性能规范
| 设计与制造 | 结构长度 | 联结法兰 | 压力试验 | 产品标志 | 供货要求 |
| GB/T12237 | HG/T3704-2003 GB/T1221 | HG20592-97 | GB/T13927-92 | GB12220 | GB/T12252 |
公称压力:PN1.0-1.6(MPa),公称通径:DN15-DN250(mm)。
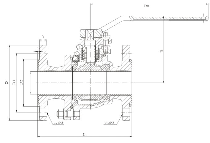
F46衬里球阀示意图
主要零部件材料表
| 序号 | 零件名称 | 球墨铸铁 | 碳钢 | 不锈钢 | 超低碳不锈钢 |
| QT | C | P | R | PL | RL |
| 1 | 阀体,阀盖 | QT400-18 | WCB | CF8 | CF8M | CF3 | CF3M |
| 2 | 球,阀杆 | WCB | WCB | CF8 | CF8M | CF3 | CF3M |
| 3 | 衬里层,阀座 | FEP(F46) PCTFE(F3) PFA(可溶性F4) PO PP |
| 4 | 填料压盖 | QT400-18 | WCB | CF8 | CFM | CF3 | CF3M |
| 5 | 填料 | PTFE(F4) |
| 6 | 螺栓 | 35 | 35 | 1Cr17Ni2 | 1Cr18Ni9 |
| 7 | 螺母 | 45 | 45 | 0Cr18Ni9 | 0Cr18Ni9 |
| 8 | 手柄 | WCB |
主要连接尺寸和重量
| 公称通径 | 标准值 | 参考值 |
| DN (mm) | NPS (inch) | L | D | D1 | D2 | f | b | Z-Φd | Do | H | W(kg) |
| PN1.0/PN1.6(MPa) |
| 15 | 1/2 | 130 | 95 | 65 | 45 | 2 | 14 | 4-Φ14 | 120 | 80 | 2.5 |
| 20 | 3/4 | 140 | 105 | 75 | 55 | 2 | 16 | 4-Φ14 | 140 | 90 | 3 |
| 25 | 1 | 150 | 115 | 85 | 65 | 2 | 16 | 4-Φ14 | 160 | 100 | 4.5 |
| 32 | 11/4 | 165 | 140 | 100 | 78 | 2 | 18 | 4-Φ18 | 160 | 110 | 5.7 |
| 40 | 11/2 | 180 | 150 | 110 | 85 | 3 | 18 | 4-Φ18 | 200 | 120 | 7 |
| 50 | 2 | 200 | 165 | 125 | 100 | 3 | 20 | 4-Φ18 | 250 | 135 | 9.5 |
| 65 | 21/2 | 220 | 185 | 145 | 120 | 3 | 20 | 4-Φ18 | 300 | 145 | 15 |
| 80 | 3 | 250 | 200 | 160 | 135 | 3 | 22 | 4-Φ18/8-Φ18 | 350 | 185 | 19 |
| 100 | 4 | 280 | 220 | 180 | 155 | 3 | 22/24 | 8-Φ18 | 400 | 195 | 33 |
| 125 | 5 | 320 | 250 | 210 | 185 | 3 | 24/26 | 8-Φ18 | 500 | 210 | 58 |
| 150 | 6 | 360 | 285 | 240 | 210 | 3 | 24/28 | 8-Φ23 | 200* | 450 | 93 |
| 200 | 8 | 457 | 340 | 295 | 265 | 3 | 26/30 | 8-Φ23/12-Φ23 | 240* | 490 | 155 |
| 250 | 10 | 533 | 395/410 | 350/335 | 320 | 4 | 28/32 | 12-Φ25 | 240* | 550 | 210 |
*为蜗轮转动手轮直径尺寸